マンスリーひょうたん町【地元不動産会社が運営・築浅・金沢駅近く・駐車場あり・快適ステイ・家電付・オートロック&Wi-Fi完備の清潔マンスリー】のウィークリーマンション物件詳細
最近みた物件
お気に入り
初めての方へ
ご契約の流れ
Q&A
物件リクエスト
ウィークリーマンションドットコムTOP
>
マンスリーひょうたん町【地元不動産会社が運営・築浅・金沢駅近く・駐車場あり・快適ステイ・家電付・オートロック&Wi-Fi完備の清潔マンスリー】の物件詳細
マンスリーひょうたん町【地元不動産会社が運営・築浅・金沢駅近く・駐車場あり・快適ステイ・家電付・オートロック&Wi-Fi完備の清潔マンスリー】の物件詳細
お気に入りに追加しますか?
最寄駅
IRいしかわ鉄道金沢駅 徒歩13分
所在地
石川県金沢市瓢箪町
(
地図
)
車でアクセス
築年月
2019年5月
構造
鉄骨造/3階建
ベッドタイプ
シングル
間取り
1R
面積
18.47m²
定員人数
2名
駐車場
○
最低契約日数
7日
運営不動産会社情報
株式会社ヤマキシ不動産
tel.
076-227-8555
営業日
不定休
営業時間
10時-18時
お気に入りに追加
この物件にお問合せ
(無料)
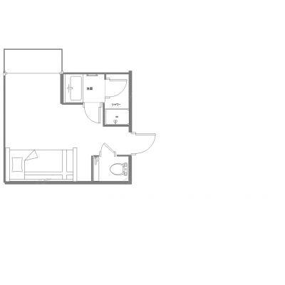
マンスリーひょうたん町【地元不動産会社が運営・築浅・金沢駅近く・駐車場あり・快適ステイ・家電付・オートロック&Wi-Fi完備の清潔マンスリー】の物件・間取り写真
※
間取図・画像と現況が異なる場合は現況を優先とします。
マンスリーひょうたん町【地元不動産会社が運営・築浅・金沢駅近く・駐車場あり・快適ステイ・家電付・オートロック&Wi-Fi完備の清潔マンスリー】の料金情報
期間
賃料
光熱費
清掃費
ショート
(1ヶ月以上~3ヶ月未満)
2,300円/日 69,000円/月
770円/日 23,100円/月
13,200円/回(契約時)
ミドル
(3ヶ月以上~7ヶ月未満)
2,200円/日 66,000円/月
770円/日 23,100円/月
26,200円/回(契約時)
ロング
(7ヶ月以上~12ヶ月未満)
2,100円/日 63,000円/月
770円/日 23,100円/月
31,200円/回(契約時)
その他費用
●リネン(布団)レンタル:14,300円 / 初月 2カ月目以降レンタル:3,300円/月
※二人目以降の寝具追加分に関しては、事前に必要数を申し出てください。追加でお布団のご用意(和布団セット)が必要な場合は、追加費用が発生します
●12~3月は冬季暖房代(+220円/日)が別途掛かります
●2名様以降のご利用は、1日あたり1,000円~半額/日の追加家賃が発生
●駐車場:近隣コインパーキングをご利用ください
●キッチン・ランドリー:キッチンおよびランドリーは共有です
【本物件の利用について】
・一時使用賃貸借契約を締結し、部屋を賃貸いたします。
・入居中の室内の定期的な清掃やゴミ捨てなどの衛生管理については、入居者の方の責任において行ってください。(掃除機などはご用意しております)
また、寝具類についても入居者の方の責任において洗濯・交換を行っていただき、良好な衛生状態管理をお願いします。(洗濯機はご用意しております)
・賃貸物件となりますので、入居時に頂いたハウスクリーニング費用で物件退去後の原状回復クリーニングを行いますが、故意または過失により居室内やキッチンなどの付帯設備、家具家電に損害を与えた場合、その復旧費用を別途お支払いいただきます。
・室内は原則禁煙となっております。室内にて喫煙された場合、退去時にヤニ汚れの清掃費用・消臭費用、消防設備復旧費用などの原状回復費用をお支払いいただきます。
【別途費用】
管理費 300円/日
安心サポート 110円/日
※ご利用には審査がございます。審査結果によりご希望に添えない可能性がございますので、ご了承ください。
※
ご契約日数によって料金が異なる場合があります。詳しくは物件の運営会社にお問合せ下さい。
マンスリーひょうたん町【地元不動産会社が運営・築浅・金沢駅近く・駐車場あり・快適ステイ・家電付・オートロック&Wi-Fi完備の清潔マンスリー】のオプション情報
主な設備
インターネット対応
オートロック
エアコン
クローゼット
バス・トイレ別
洗面所独立
フローリング
洗濯機
宅配BOX
ペット可
設備・備品一覧
電化製品
オーブントースター、エアコン、テレビ、トースター、ドライヤー、ミニ冷蔵庫、炊飯ジャー、洗濯機、掃除機、電気スタンド、電気ポット、電子レンジ、冷蔵庫
家具製品
イス、カーテン付き、テーブル、テレビ台、デスク、ベッド
キッチン類
IHクッキングヒーター
バス・トイレ類
シャワー、トイレ用ブラシ、洗面所独立、脱衣所
備品、消耗品
ゴミ箱、ハンガー、室内物干し、洗濯干し
その他
トイレ、下水道、給湯設備、上水道、浴室
物件設備
オートロック
部屋設備
インターネット対応(無料)、バス・トイレ別、洗浄機能付き便座、洗濯機置場(室内)、冷暖房完備
マンスリーひょうたん町【地元不動産会社が運営・築浅・金沢駅近く・駐車場あり・快適ステイ・家電付・オートロック&Wi-Fi完備の清潔マンスリー】の地図情報
お気に入りに追加
この物件にお問合せ
(無料)
マンスリーひょうたん町【地元不動産会社が運営・築浅・金沢駅近く・駐車場あり・快適ステイ・家電付・オートロック&Wi-Fi完備の清潔マンスリー】の物件概要
交通情報
所在地
石川県金沢市瓢箪町(
地図
)
最寄駅
IRいしかわ鉄道金沢駅 徒歩13分
車でのアクセス
建物に関する情報
築年月
2019年5月
構造
鉄骨造/3階建
間取り
1R
面積
18.47m²
定員人数
2名
駐車場
○
ベッドタイプ
シングル
契約に関する情報
契約形態
定期借家
取引形態
貸 主
保証人
必要
最低契約日数
7日
契約時に必要な書類等
●個人の方:運転免許証、パスポート(コピーや写真)
●法人様:会社概要(ホームページも可)
その他の契約等の注意点
禁煙
お支払い方法
分割可、一括可、振込可、現金可
カード決済利用可能種類
マンスリーひょうたん町【地元不動産会社が運営・築浅・金沢駅近く・駐車場あり・快適ステイ・家電付・オートロック&Wi-Fi完備の清潔マンスリー】を取り扱っている不動産会社
株式会社ヤマキシ不動産
石川県野々市市本町6丁目12-70
tel.
076-227-8555
fax.076-294-5766
この物件にお問合せ
(無料)
空室確認、資料請求など
営業時間
10時-18時
営業日
不定休
オススメコメント
金沢駅から徒歩圏内にありながら、静かで落ち着いた環境のマンスリーマンションです。
室内は清潔感にあふれ、トイレとシャワーは独立しているので快適にお過ごしいただけます。
オートロックとWi-Fiも完備しており、安心してご滞在いただけます。
キッチンは共有ですが、徒歩圏内にはスーパー「マルエー」や近江町市場もあり、生活にも観光にも便利です。
※駐車場は先着順です。
当サイトではCookieを使用します。Cookieの使用に関する詳細は「
プライバシーポリシー
」をご覧ください。
OK